Rue des Prés
à vendre Maison à Heusy
450 000€

219 kWh/m².an. Total: 42486 kWh/an.
n°: 20240130001217
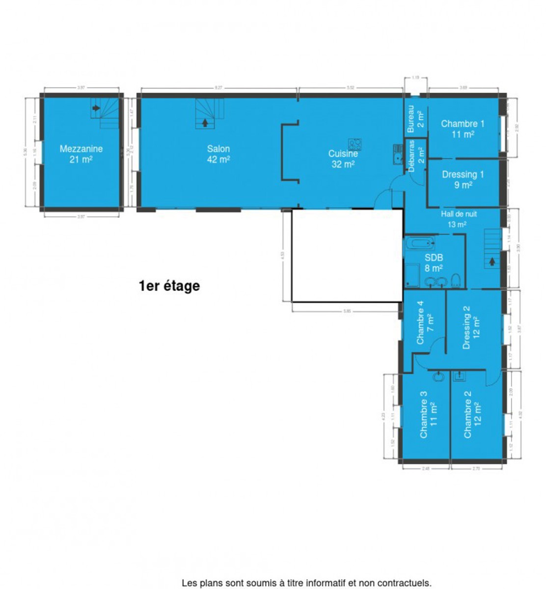
4 chambres
194m² habitables
Caractéristiques
En chiffres
-
Nbre de toilette(s)
2 -
Nombre de sdd
1 -
Chambre 1
10.76 m² -
Chambre 2
11.66 m² -
Chambre 3
11.18 m² -
Chambre 4
7.03 m² -
Salle de séjour
42 m² -
Cuisine
31.81 m² -
Bureau
2.27 m²
Equipement de base
-
Accès handicapés
NonCuisine
OuiType de cuisine
équipéeChauffage (ind/coll)
IndividuelAscenseur
NonDouble vitrage
OuiDouble vitrage
Isol. thermiqueChauffage
Gaz (chau. centr.)Sdb
Douche et bainVideophone
Oui
Équipements techniques
-
Châssis
Pvc
Bâtiment
-
Nombre de garage
2
Divers
-
Bureau
OuiCave
Oui
Type de matériau & évaluation
-
Type de revêtement de sol
Carrelages
Ext. & Environnement
En chiffres
-
Largeur de façade
44 -
Nbre de terrasse(s)
1 -
Orientation de la terrasse 1
Sud-ouest
Equipement extérieur
-
Piscine
Non
Spécificités terrain
-
Type d'environnement
Campagne -
Type d'environnement 2
Résidentiel -
Risque d'inondation
pas situé en zone inondable
Raccordements
-
électricité
OuiTélévision par cable
OuiGaz
OuiEau
Oui
À proximité
-
Transports en commun
OuiTransports en commun
500Autoroute
OuiAutoroute
3000
Admin & Financier
Charges & Rendement
-
Sous régime TVA
Non
Energie
-
Label PEB
C -
PEB E-SPEC (kwh/m²/an)
219 -
Emission CO2
38 -
E total
53086 -
PEB code unique
20240130001217 -
PEB valide jusqu'au
01/30/2034 00:00 -
Date du PEB
01/31/2024 00:00
Cadastre
-
Revenu cadastral (€)
1083 €
Certificats / Attestations
-
Certificat d'électricité
Oui, conforme