Route du Circuit
à vendre maison à Francorchamps
400 000€

654 kWh/m².an. Total: 60822 kWh/an.
n°: 20140606014494
3 chambres
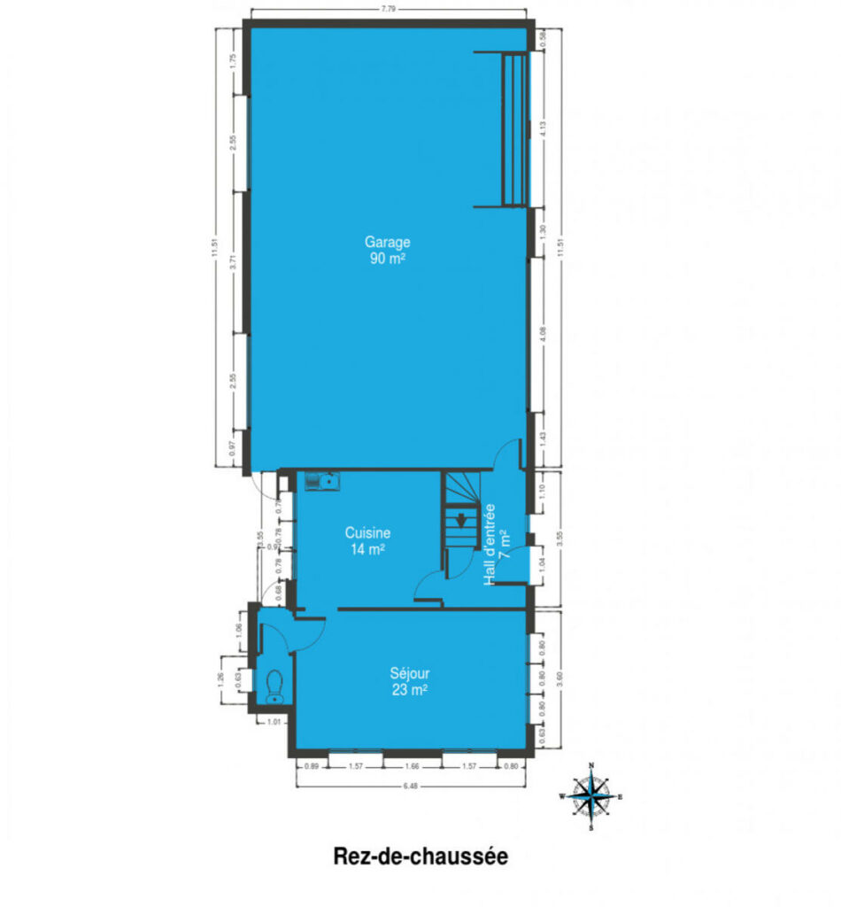
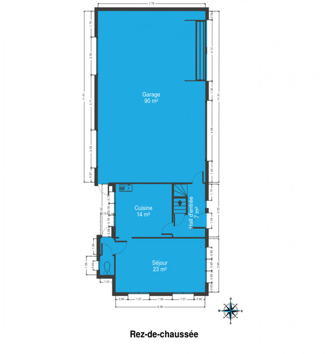
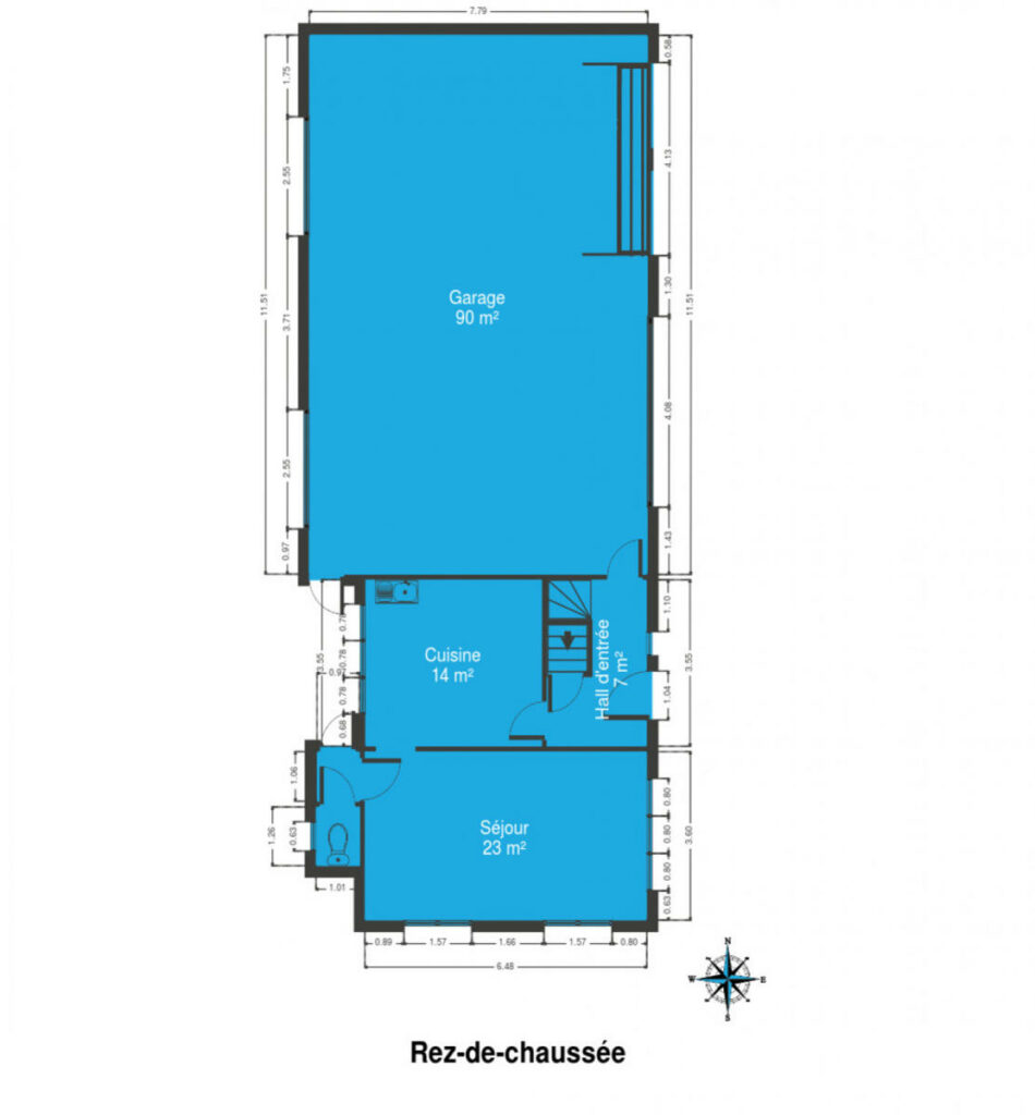
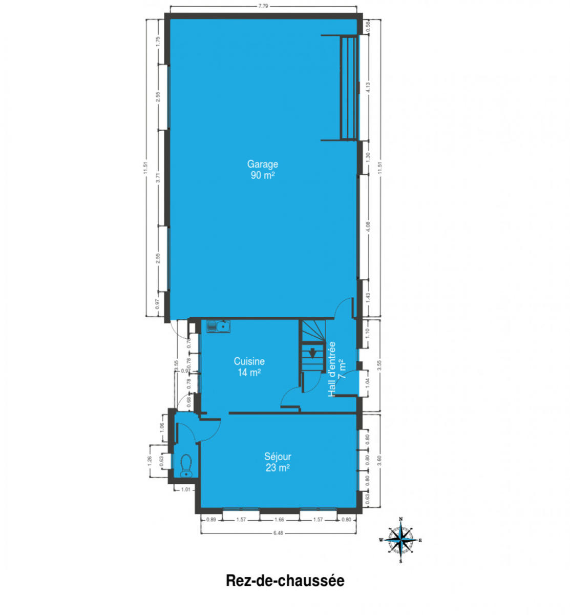
93m² habitables
Caractéristiques
En chiffres
-
Nbre de toilette(s)
1 -
Nombre de sdd
1 -
Chambre 1
14.52 m² -
Chambre 2
14.36 m² -
Chambre 3
9.05 m² -
Salle de séjour
23.32 m² -
Cuisine
14.41 m² -
Salle de bain 1
6.15 m² -
Nbre de pièce(s)
13
Equipement de base
-
Accès handicapés
NonCuisine
OuiType de cuisine
Non-équipéeChauffage (ind/coll)
IndividuelAscenseur
NonChauffage
Mazout (chauf. centr.)Sdb
Douche
Équipements techniques
-
Châssis
Bois -
Centrale tél.
Oui
Sécurité
-
Volets
OuiAlarme
Oui
Bâtiment
-
Nombre de garage
1 -
Parking intérieur
OuiParking(s) intérieur
5Parking extérieur
OuiParking(s) extérieur
4Type de toit
En pente
Divers
-
Buanderie
OuiCave
OuiGrenier
Oui
Type de matériau & évaluation
-
Type de revêtement de sol
Carrelages
Ext. & Environnement
En chiffres
-
Largeur front de rue
30 -
Surface bâtie
137 m² -
Largeur de façade
19 -
Profondeur terrain
30 -
Surface brute
247 m²
Equipement extérieur
-
Piscine
Non
Spécificités terrain
-
Type d'environnement
Central -
Exposition de la façade avant
Est
Raccordements
-
égouts
Ouiélectricité
OuiTélévision par cable
OuiCâbles téléphoniques
OuiEau
Oui
À proximité
-
Transports en commun
OuiTransports en commun
200Autoroute
OuiAutoroute
3500
Admin & Financier
Charges & Rendement
-
Sous régime TVA
NonLoué
Non
Energie
-
Label PEB
G -
PEB E-SPEC (kwh/m²/an)
654 -
Emission CO2
164 -
E total
89859 -
PEB code unique
20140606014494 -
PEB valide jusqu'au
06/06/2024 00:00
Certificats / Attestations
-
Certificat d'électricité
Non