Villa Bleu : Butgenbach
à vendre maison à Büllingen
349 232€
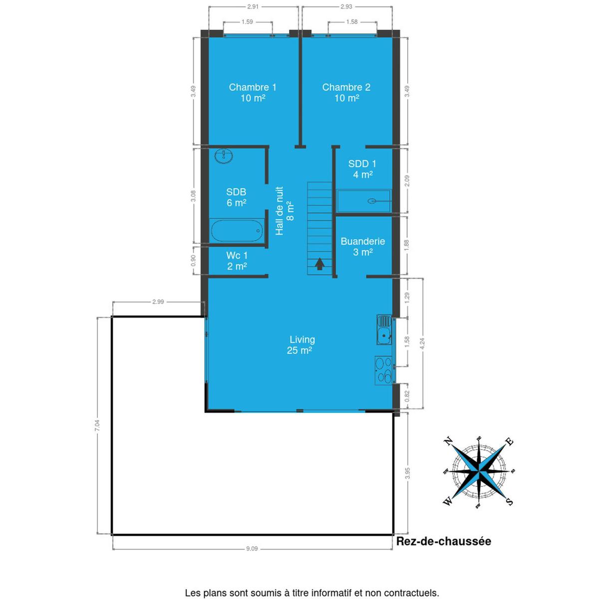
2 chambres
72m² habitables
Caractéristiques
En chiffres
-
Nbre de toilette(s)
1 -
Nombre de sdd
1 -
Chambre 1
10 m² -
Chambre 2
11 m² -
Chambre 3
0 m² -
Chambre 4
0 m² -
Chambre 5
0 m² -
Salle de séjour
22 m² -
Cuisine
10 m²
Equipement de base
-
Accès handicapés
OuiCuisine
OuiType de cuisine
équipéeChauffage (ind/coll)
IndividuelAscenseur
NonDouble vitrage
OuiDouble vitrage
Isol. thermique et acoustiqueChauffage
Pompe à chaleurSdb
Douche et bain
Équipements techniques
-
Air conditionné
OuiChâssis
Aluminium
Bâtiment
-
Année de construction
2025 -
Parking intérieur
NonParking extérieur
OuiEspace ventilé
OuiType de toit
Toit plat
Type de matériau & évaluation
-
Type de revêtement de sol
Carrelages
Ext. & Environnement
En chiffres
-
Surface bâtie
72 m² -
Surface de terrasse 2
26 m² -
Largeur de façade
11 -
Nbre de terrasse(s)
1
Equipement extérieur
-
Piscine
Non
Spécificités terrain
-
Type d'environnement
Calme -
Risque d'inondation
pas situé en zone inondable
Raccordements
-
égouts
Nonélectricité
OuiTélévision par cable
OuiCâbles téléphoniques
OuiEau
Oui
Admin & Financier
Charges & Rendement
-
Sous régime TVA
Oui
Energie
-
Label PEB
A -
PEB E-SPEC (kwh/m²/an)
80
Certificats / Attestations
-
Certificat d'électricité
Oui, conforme