Namur 24/1
Loué appartement à Verviers
650€

112 kWh/m².an. Total: 5824 kWh/an.
n°: 20250518012439
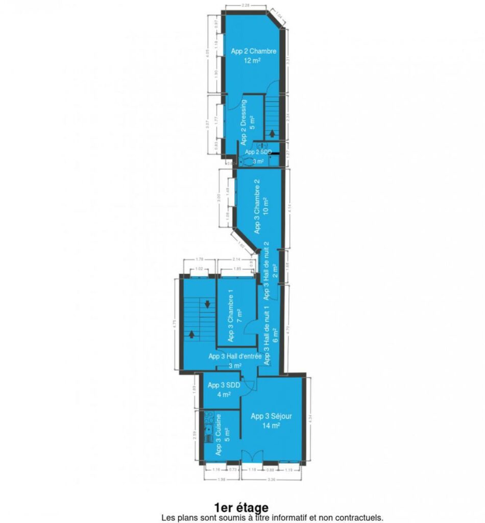
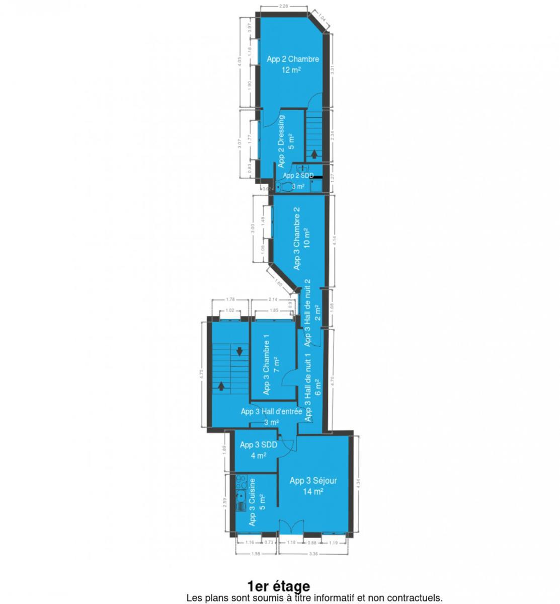
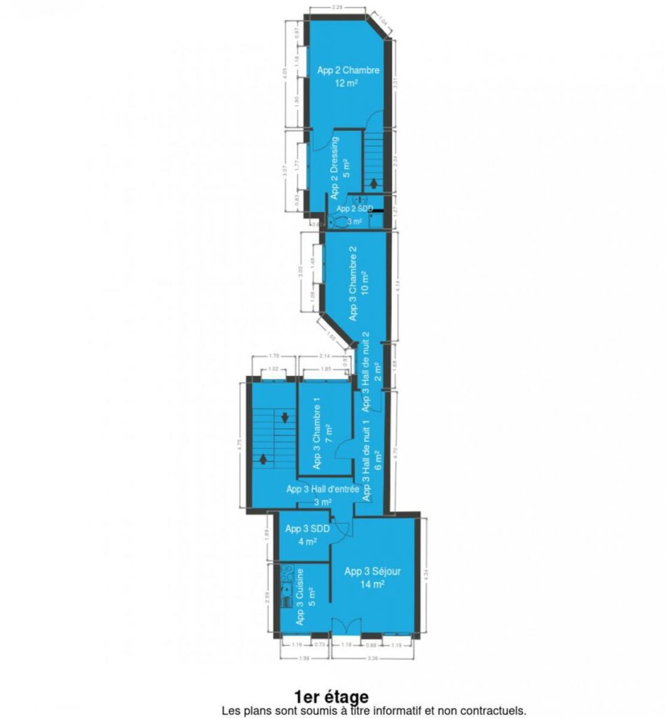
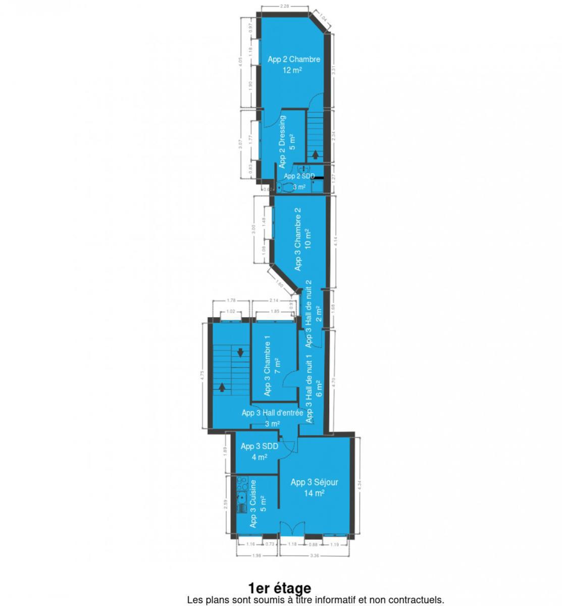
2 chambres
52m² habitables
Caractéristiques
En chiffres
-
Nbre de toilette(s)
1 -
Nombre de sdd
1 -
Chambre 1
10 m² -
Salle de séjour
14 m²
Equipement de base
-
Accès handicapés
NonType de cuisine
Semi-équipéeChauffage (ind/coll)
IndividuelAscenseur
NonDouble vitrage
OuiDouble vitrage
Isol. thermique et acoustiqueChauffage
Gaz (chau. centr.)Sdb
DoucheParlophone
Oui
Équipements techniques
-
Châssis
Pvc
Sécurité
-
Contrôle d'accès
Oui
Bâtiment
-
Parking intérieur
NonParking extérieur
Non
Ext. & Environnement
Equipement extérieur
-
Piscine
Non
Spécificités terrain
-
Type d'environnement
Central -
Risque d'inondation
pas situé en zone inondable
Raccordements
-
électricité
OuiTélévision par cable
OuiGaz
OuiCâbles téléphoniques
OuiEau
Oui
À proximité
-
Magasins
OuiMagasins
50Transports en commun
OuiTransports en commun
50
Admin & Financier
Charges & Rendement
-
Charges locataire
50 €
Energie
-
Label PEB
B -
PEB E-SPEC (kwh/m²/an)
112 -
Emission CO2
21 -
E total
7228 -
PEB code unique
20250518012439
Certificats / Attestations
-
Certificat d'électricité
Oui, conforme