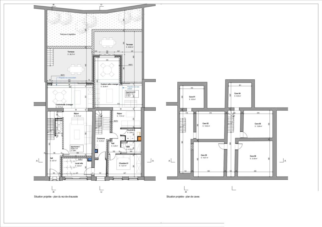
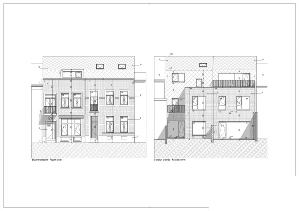
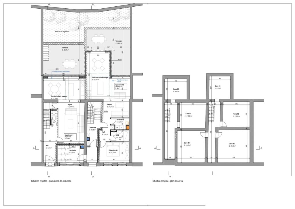
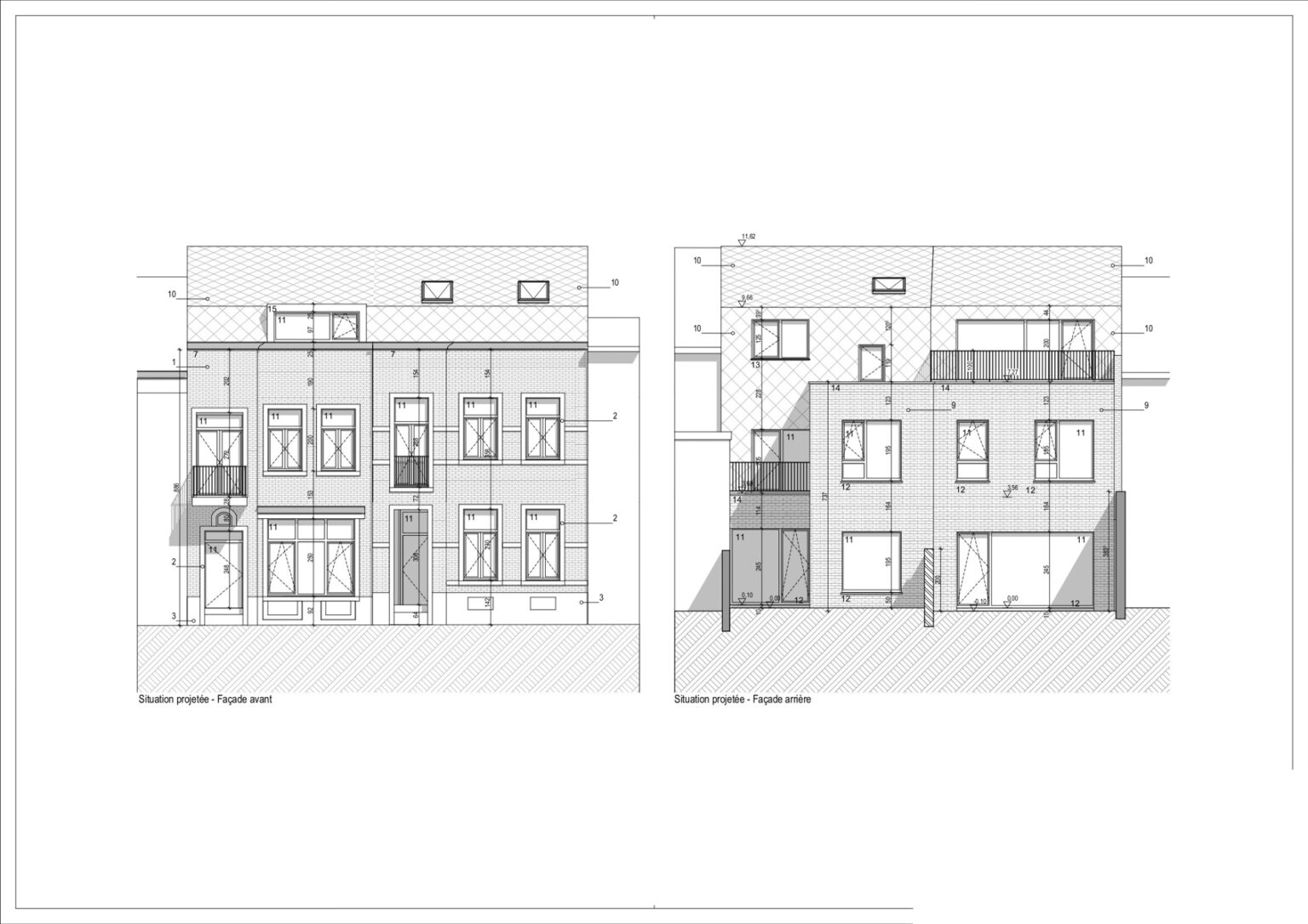
Projet Victor David 23-25
Option v. Immeuble à appartements à Limbourg
264 000€
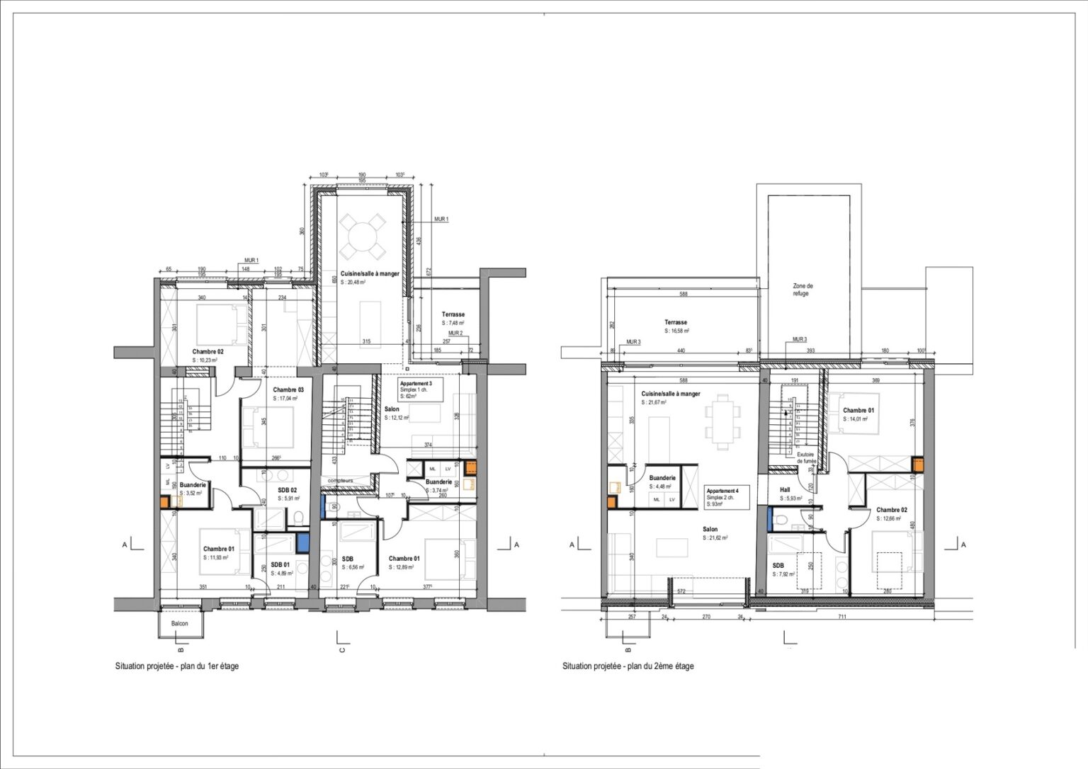
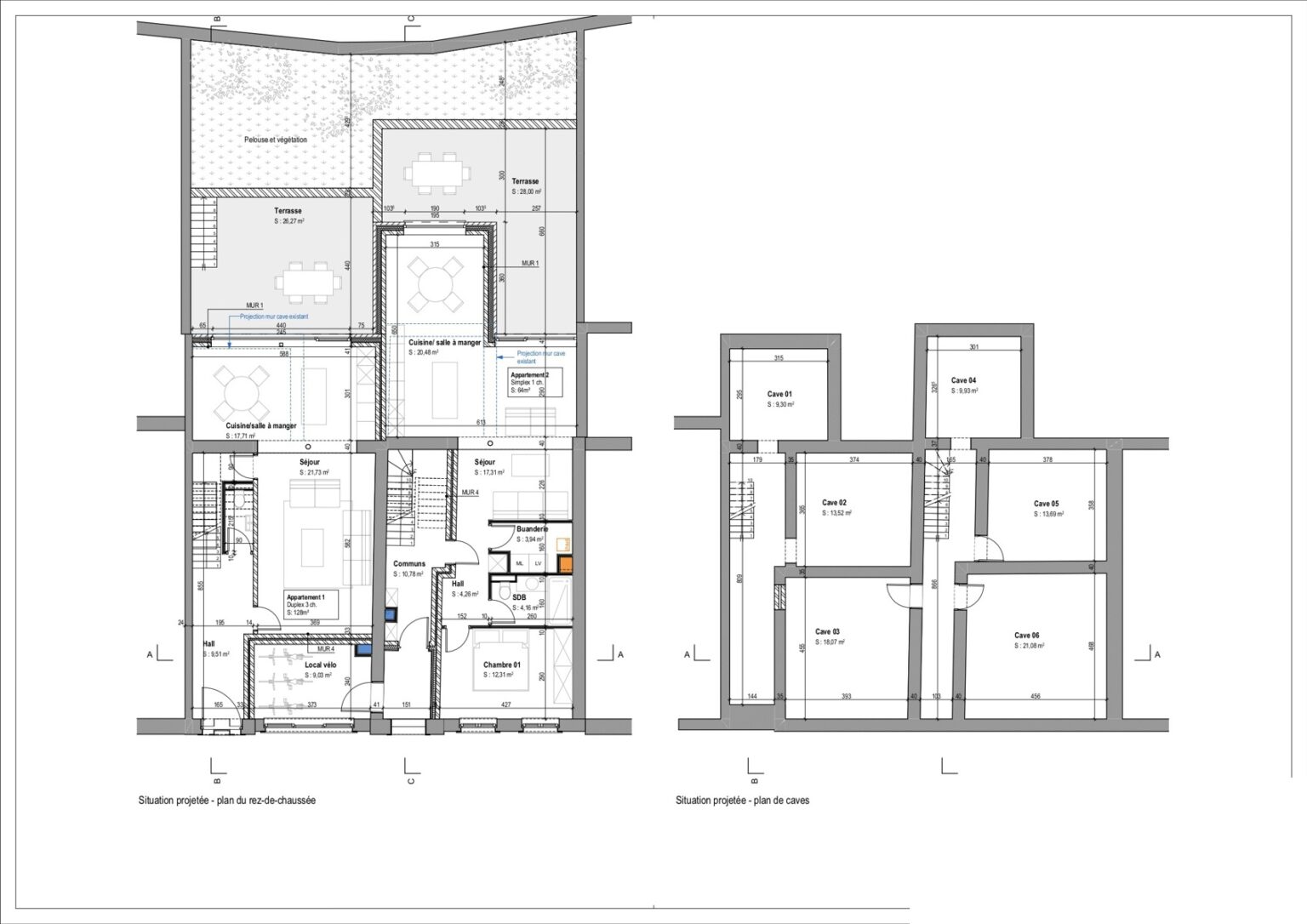
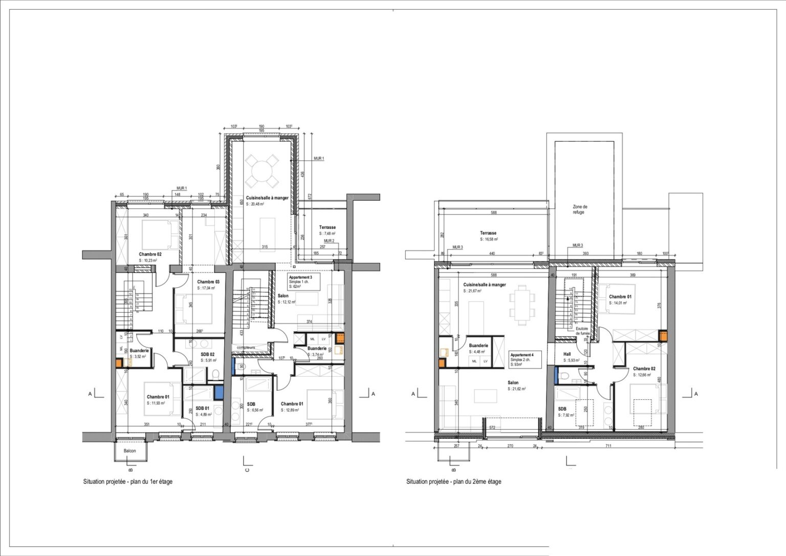
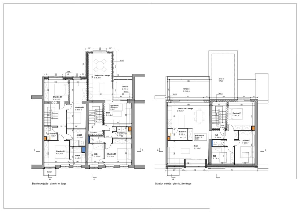
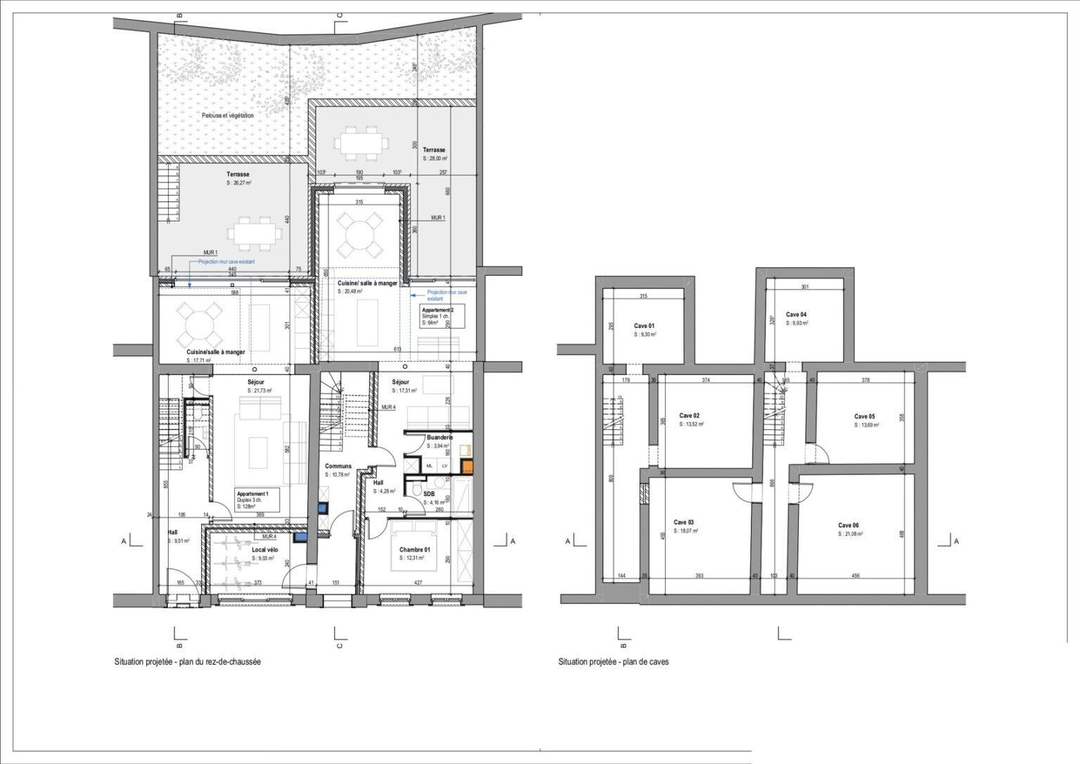
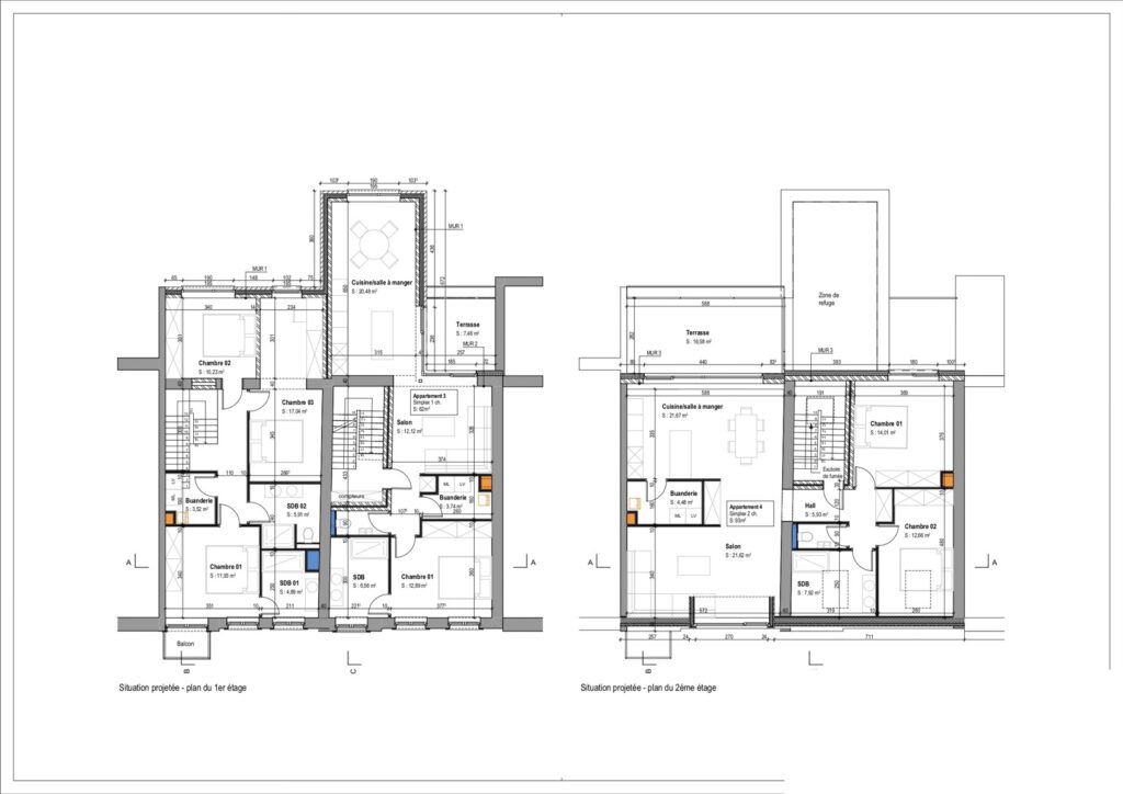
7 chambres
340m² habitables
Caractéristiques
En chiffres
-
Nbre de toilette(s)
4 -
Nombre de sdd
4 -
Chambre 1
12 m² -
Chambre 2
17 m² -
Chambre 3
12 m² -
Chambre 4
14 m² -
Chambre 5
13 m²
Equipement de base
-
Accès handicapés
NonType de cuisine
Non-équipéeAscenseur
NonChauffage
Pas installé
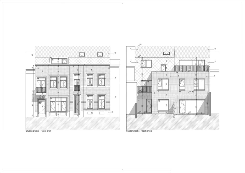
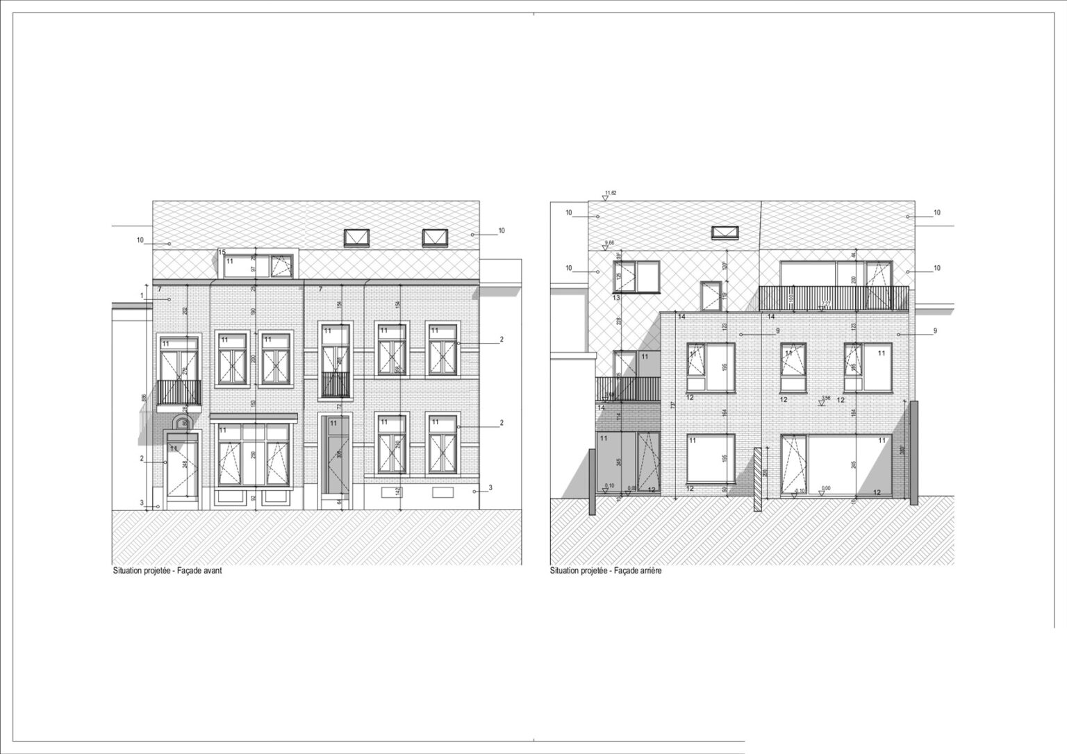
Bâtiment
-
Année de construction
2025 -
Parking intérieur
NonParking extérieur
Non
Ext. & Environnement
Equipement extérieur
-
Piscine
Non
Spécificités terrain
-
Type d'environnement
Central -
Risque d'inondation
pas situé en zone inondable
Admin & Financier
Charges & Rendement
-
Sous régime TVA
Non
Certificats / Attestations
-
Certificat d'électricité
Non