Récollets 18
Option v. maison à Verviers
129 000€

319 kWh/m².an. Total: 38280 kWh/an.
n°: 20250724005353
2 chambres
120m² habitables
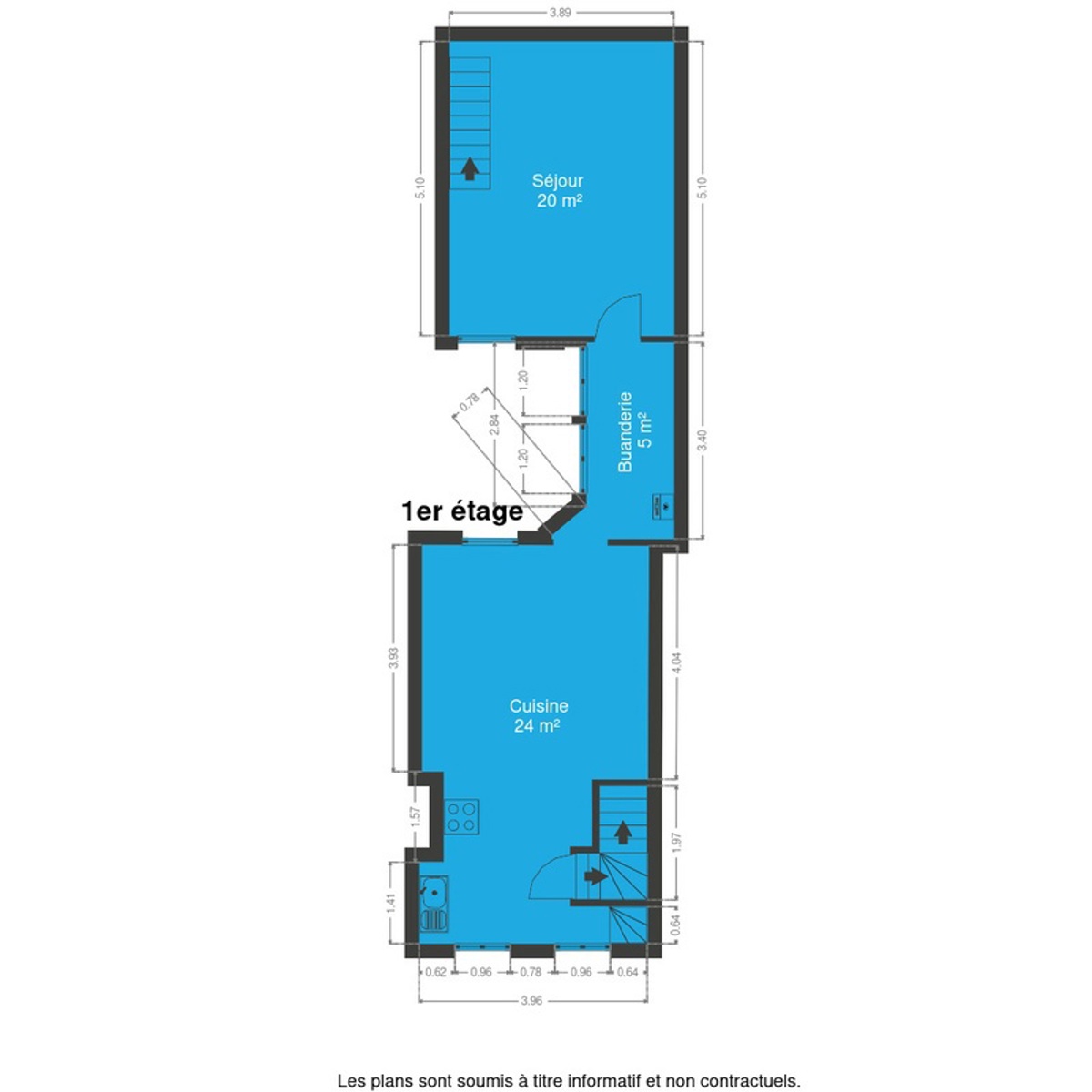
Située sur le Quai des Récollets et à proximité immédiate de toutes les facilités, agréable maison de ville entièrement rénovée en 2013 (gros œuvre, équipements et finitions). La maison se compose d'un hall d'entrée, salon avec mezzanine, salle à manger & cuisine équipée ouverte, hall de distribution avec rangements et espace buanderie, 2 chambres à coucher, bureau (ou troisième chambre), salle de bain (douche et baignoire) ouverte sur la chambre principale, palier, toilettes séparées et une cave. Le bien dispose également d'une cour intérieure. Informations techniques : PEB D, électricité conforme, chauffage central gaz (chaudière Vaillant EcoTEc), châssis PVC.
Caractéristiques
En chiffres
-
Nbre de toilette(s)
2 -
Nombre de sdd
1 -
Chambre 1
15 m² -
Chambre 2
9 m² -
Salle de séjour
19.85 m² -
Cuisine
23.94 m² -
Bureau
15.42 m² -
Nbre de pièce(s)
12
Equipement de base
-
Accès handicapés
NonCuisine
OuiType de cuisine
Semi-équipéeAscenseur
NonDouble vitrage
OuiChauffage
Gaz (chau. centr.)
Équipements techniques
-
Châssis
Pvc
Sécurité
-
Volets
OuiVolets
Type manuel
Bâtiment
-
Parking intérieur
NonParking extérieur
Non
Divers
-
Buanderie
OuiBureau
OuiCave
Oui
Type de matériau & évaluation
-
Type de revêtement de sol
Quickstep
Ext. & Environnement
En chiffres
-
Largeur front de rue
4 -
Surface bâtie
7 m² -
Largeur de façade
4 -
Profondeur terrain
17
Equipement extérieur
-
Piscine
Non
Spécificités terrain
-
Type d'environnement
Zone d'habitation -
Exposition de la façade avant
Sud-est -
Risque d'inondation
Zone innondable potentielle
Raccordements
-
égouts
Ouiélectricité
OuiGaz
OuiEau
Oui
À proximité
-
Transports en commun
OuiTransports en commun
250Autoroute
OuiAutoroute
2200
Admin & Financier
Charges & Rendement
-
Sous régime TVA
NonLoué
Non
Energie
-
Label PEB
D -
PEB E-SPEC (kwh/m²/an)
319 -
Emission CO2
58 -
E total
47388 -
PEB code unique
20250724005353 -
Date du PEB
07/24/2025 00:00
Cadastre
-
Revenu cadastral (€)
342 €
Certificats / Attestations
-
Certificat d'électricité
Oui, conforme