Rue Crapaurue
Vendu Immeuble à appartements à Verviers
450 000€

328 kWh/m².an. Total: 162360 kWh/an.
n°: 20230405034793
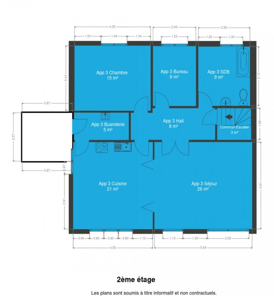
6 chambres
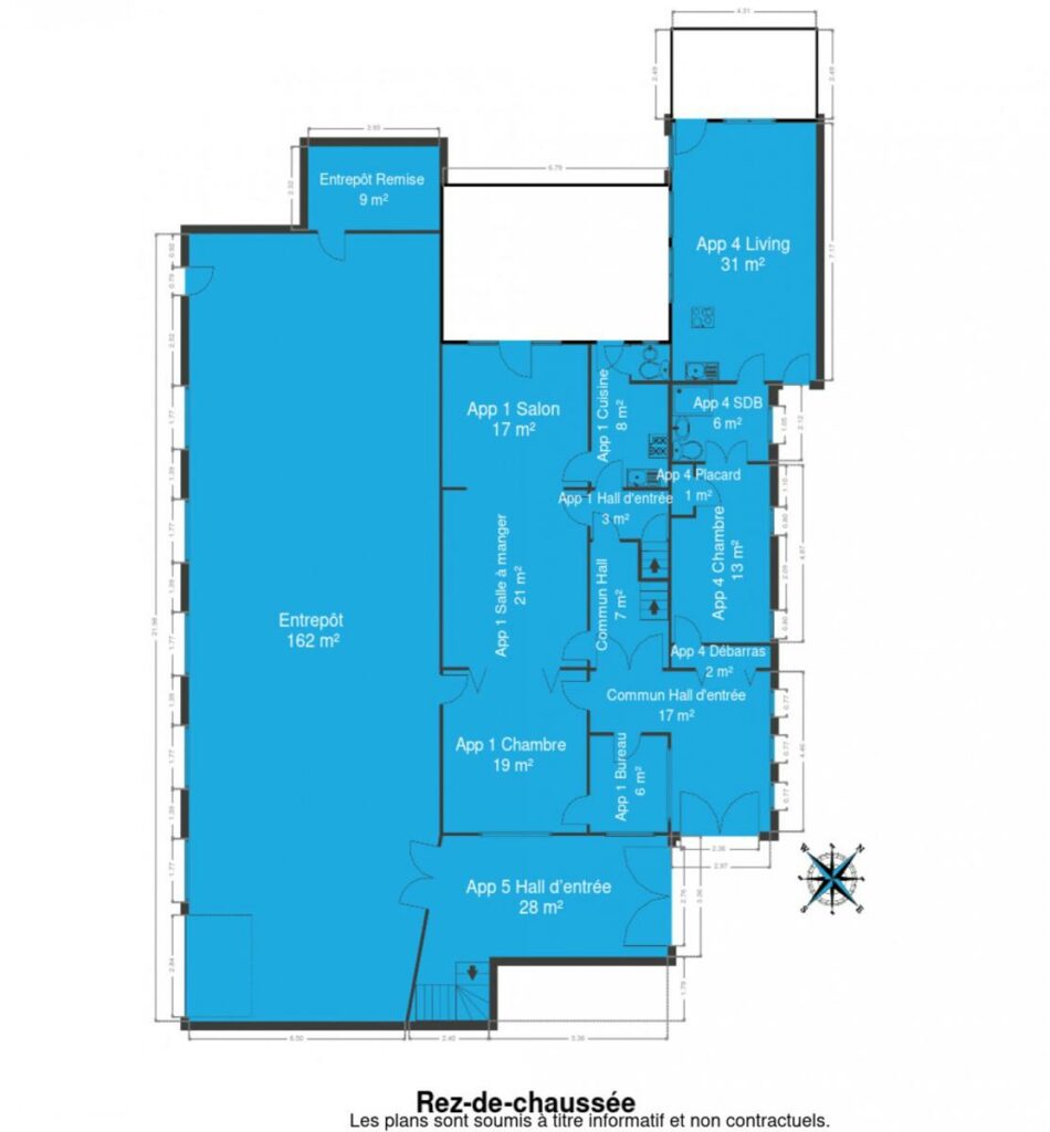
495m² habitables
Informations techniques: chauffage au gaz (chaudières individuelles), compteurs électriques individuels (électricité conforme pour 2 appartements et à faire réviser pour les 3 autres), toiture en bon état avec 12cm d'isolation, châssis double vitrage principalement (PVC et bois), PEB:D sauf pour le rez gauche: F. RC: 1941€. Travaux de rafraichissement à prévoir. Rentabilité très intéressante!
Caractéristiques
En chiffres
-
Nbre de toilette(s)
5 -
Nombre de sdd
4 -
Chambre 1
19 m² -
Chambre 2
13 m² -
Chambre 3
14 m² -
Chambre 4
12 m² -
Chambre 5
15 m² -
Salle de séjour
68.48 m² -
Salle à manger
21.24 m² -
Cuisine
7.75 m² -
Bureau
6.19 m² -
Salle de bain 1
7.17 m² -
Nbre de pièce(s)
50
Equipement de base
-
Accès handicapés
NonCuisine
OuiType de cuisine
Semi-équipéeChauffage (ind/coll)
CollectifAscenseur
NonChauffage
Gaz (chau. centr.)Parlophone
Oui
Équipements techniques
-
Châssis
Aluminium -
Centrale tél.
Oui
Sécurité
-
Volets
OuiVolets
Type manuel
Bâtiment
-
Année de construction
1800 -
Nombre de garage
1 -
Parking intérieur
Non
Divers
-
Buanderie
OuiBureau
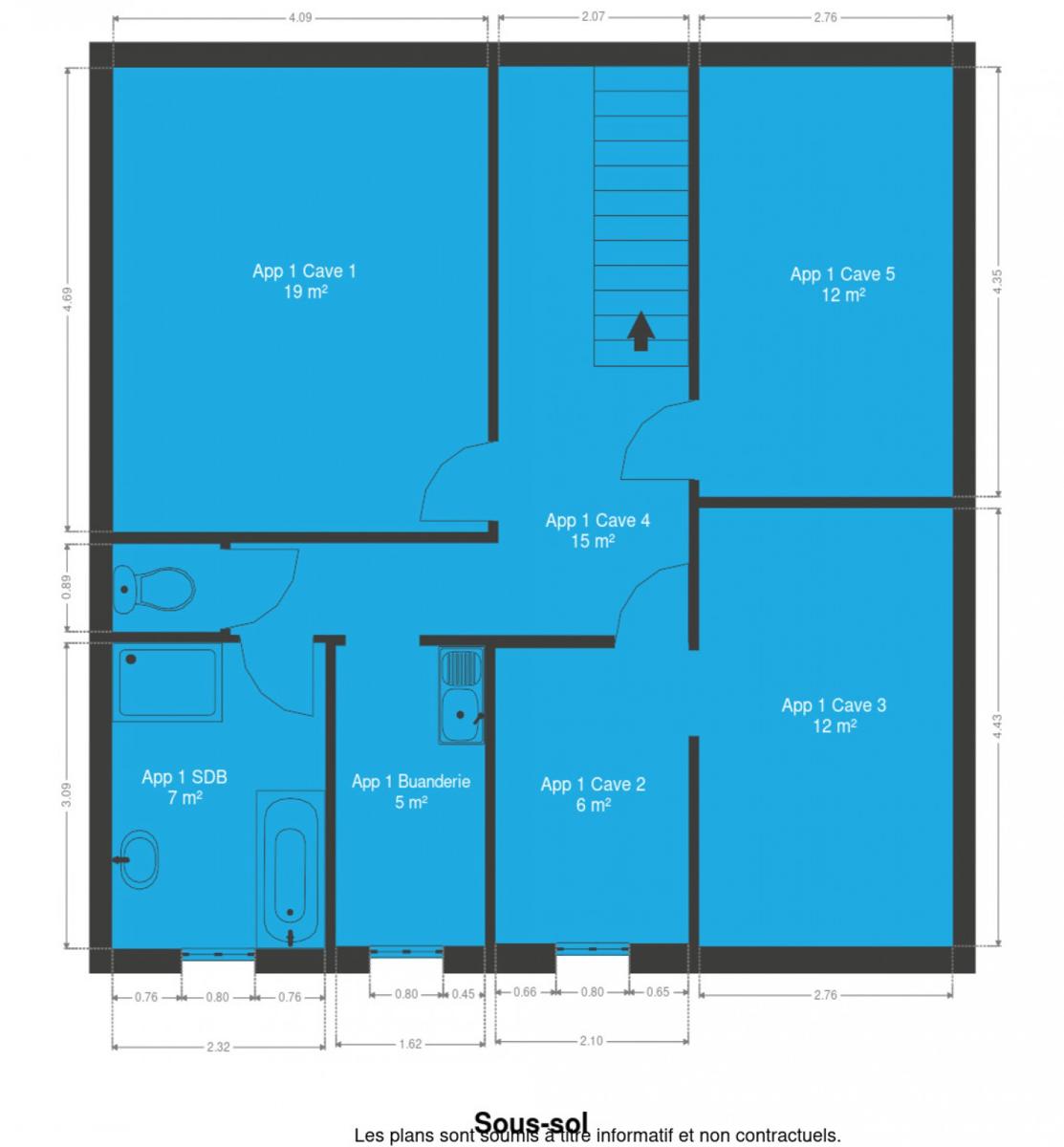
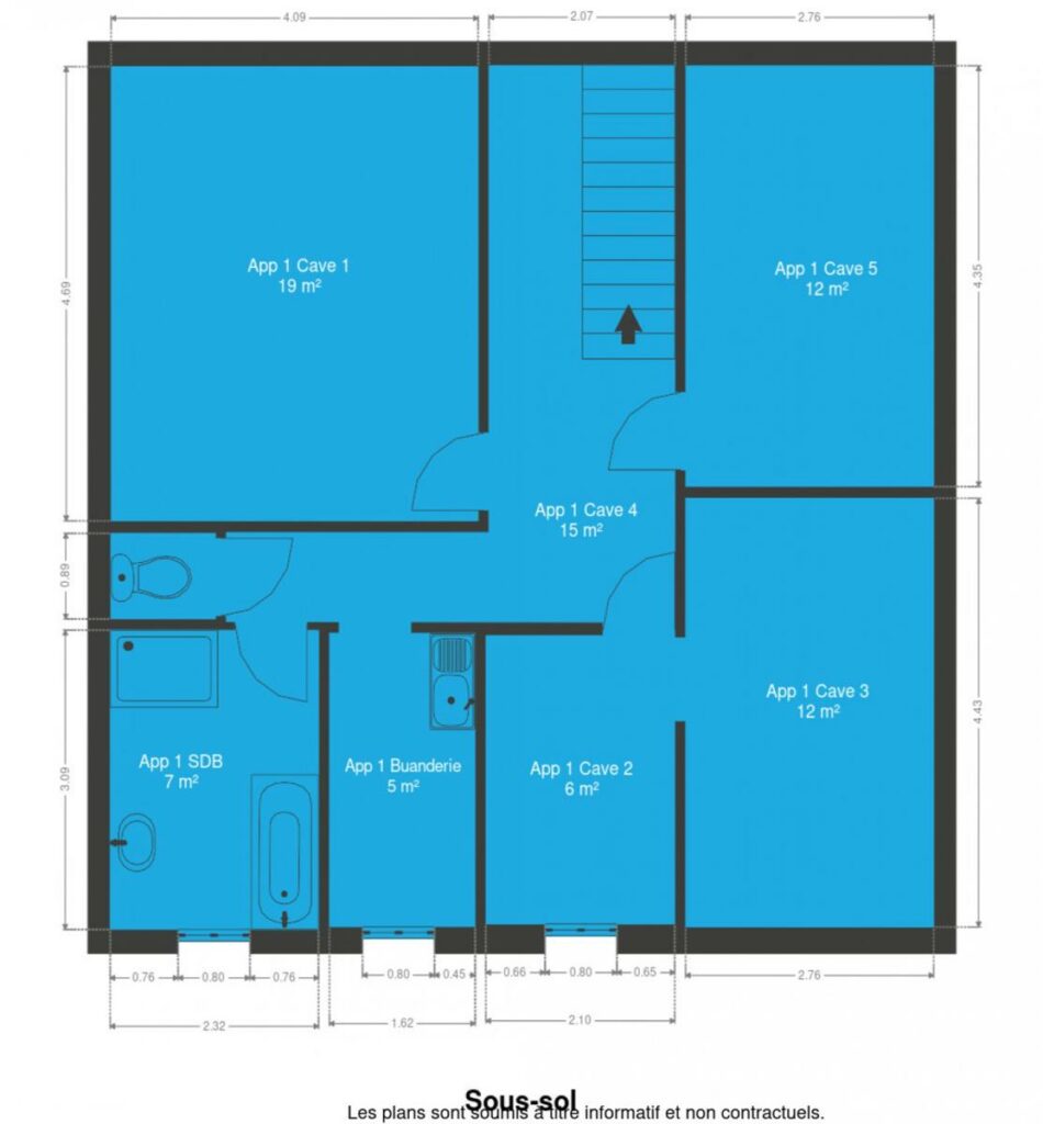
OuiCave
Oui
Type de matériau & évaluation
-
Type de revêtement de sol
Carrelages
Ext. & Environnement
En chiffres
-
Surface de terrasse 2
58 m² -
Largeur de façade
17 -
Nbre de terrasse(s)
5 -
Surface brute
733 m²
Equipement extérieur
-
Piscine
Non
Spécificités terrain
-
Type d'environnement
Centre ville -
Exposition de la façade avant
Sud-est
Raccordements
-
égouts
Ouiélectricité
OuiTélévision par cable
OuiCâbles téléphoniques
OuiEau
Oui
À proximité
-
Magasins
OuiEcoles
OuiTransports en commun
OuiTransports en commun
100Autoroute
OuiAutoroute
2500
Admin & Financier
Charges & Rendement
-
Sous régime TVA
NonLoué
Oui
Energie
-
Label PEB
D -
PEB E-SPEC (kwh/m²/an)
328 -
Emission CO2
60 -
E total
54147 -
PEB code unique
20230405034793
Cadastre
-
Revenu cadastral (€)
1941 €
Certificats / Attestations
-
Certificat d'électricité
Non