Rue des Weines rez-de-chaussée
à louer appartement à Verviers Ensival
675€

204 kWh/m².an. Total: 15096 kWh/an.
n°: 20220908002382
2 chambres
74m² habitables
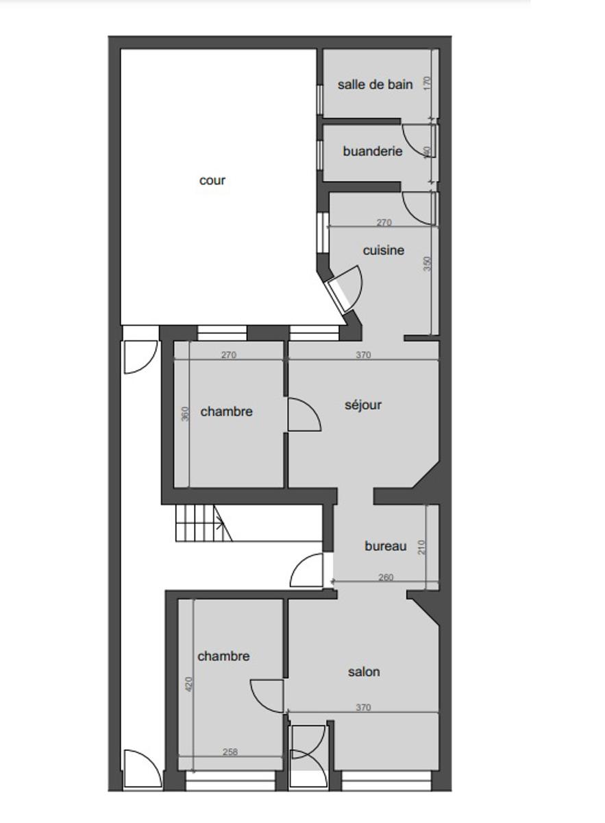
Appartement en parfait état ! D'une superficie de 74 m², il se compose de la sorte : hall d'entrée, salon, salle à manger, nouvelle cuisine équipée et lumineuse, deux chambres à coucher, buanderie et salle de bain. Un jardin privatif avec terrasse. Nouvelle chaudière privative (gaz)+ boiler électrique, châssis PVC double vitrage. Appartement entièrement carrelé, et bien isolé. PEB C ! Charges : 60 € /mois comprenant : électricité et entretien des communs + entretien chauffage + forfait EAU 1P (15 € par pesonne supplémentaire).
Remplir une fiche d'information (location à but professionnel)
Caractéristiques
En chiffres
-
Nbre de toilette(s)
1 -
Nombre de sdd
1 -
Chambre 1
10.5 m² -
Chambre 2
9.67 m² -
Salle de séjour
16 m² -
Salle à manger
12.5 m² -
Cuisine
8.9 m² -
Bureau
5.5 m²
Equipement de base
-
Accès handicapés
OuiCuisine
OuiType de cuisine
équipéeChauffage (ind/coll)
IndividuelAscenseur
NonDouble vitrage
OuiDouble vitrage
Isol. thermiqueChauffage
Gaz (chau. centr.)Sdb
Douche
Équipements techniques
-
Châssis
Pvc
Bâtiment
-
Parking intérieur
NonParking(s) intérieur
0Parking extérieur
NonParking(s) extérieur
0
Divers
-
Buanderie
Oui
Ext. & Environnement
Equipement extérieur
-
Piscine
Non
Spécificités terrain
-
Type d'environnement
Zone d'habitation -
Type d'environnement 2
Centre ville
Raccordements
-
électricité
OuiGaz
OuiEau
Oui
Admin & Financier
Charges & Rendement
-
Charges locataire
60 € -
Loué
Non
Energie
-
Label PEB
C -
PEB E-SPEC (kwh/m²/an)
204 -
Emission CO2
42 -
E total
17905 -
PEB code unique
20220908002382 -
PEB valide jusqu'au
09/08/2022 00:00
Domaine juridique
-
Affectation urbanistique
Zone d'habitat
Certificats / Attestations
-
Certificat d'électricité
Oui, conforme