Rue Henri Syberg
Vendu maison à Thimister-clermont
120 000€

269 kWh/m².an. Total: 39543 kWh/an.
n°: 20220216007181
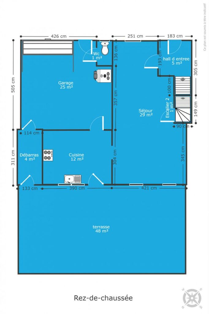
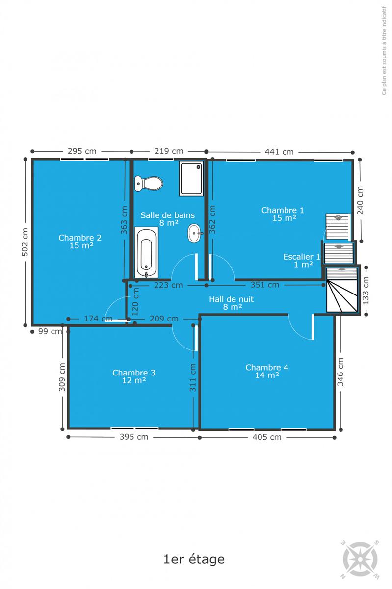
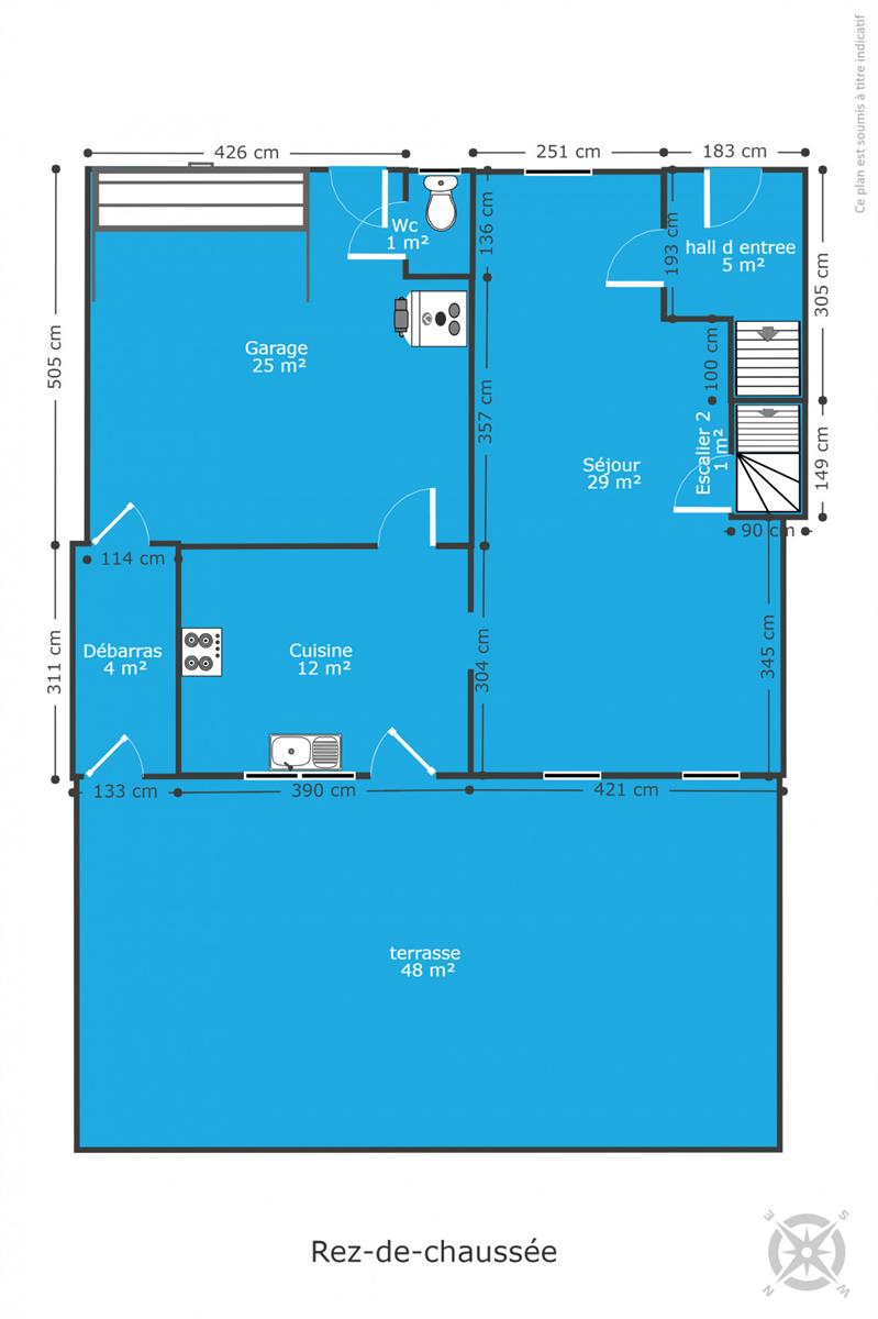
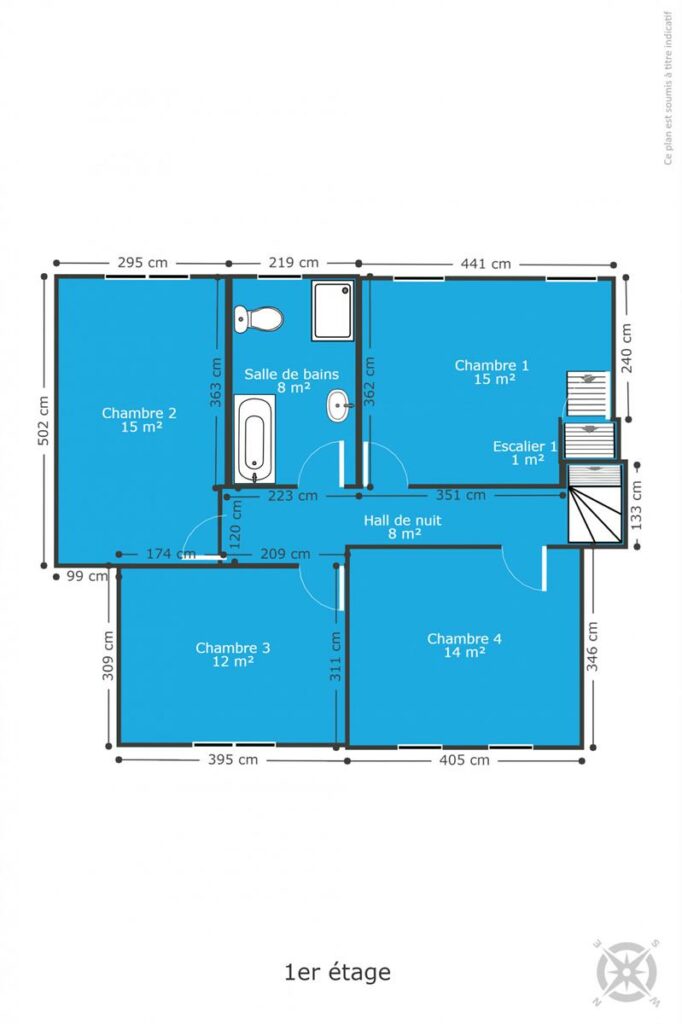
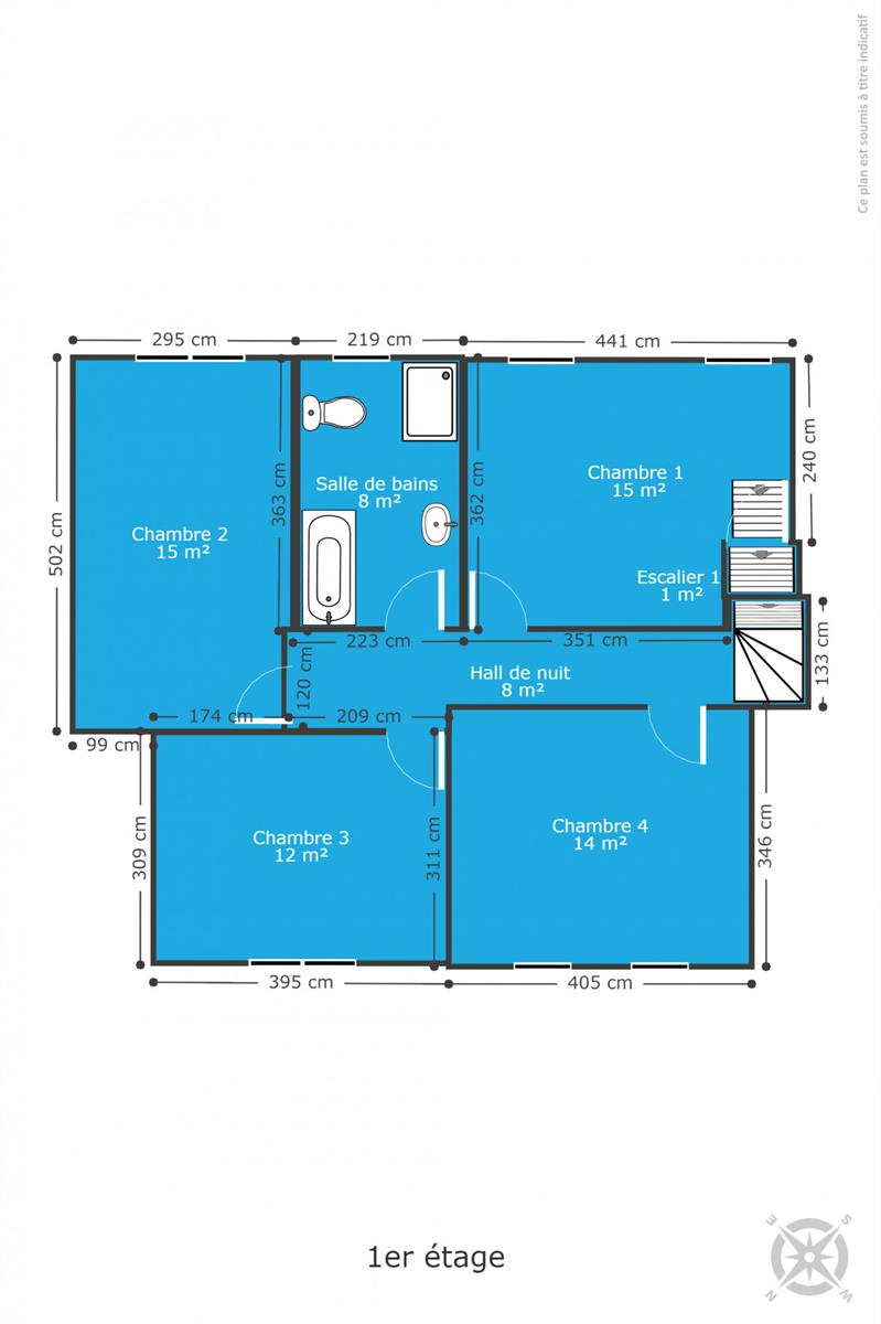
4 chambres
147m² habitables
Caractéristiques
En chiffres
-
Nbre de toilette(s)
2 -
Nombre de sdd
1 -
Chambre 1
14.62 m² -
Chambre 2
14.65 m² -
Chambre 3
12.07 m² -
Chambre 4
14.08 m² -
Salle de séjour
28.96 m² -
Cuisine
11.89 m² -
Salle de bain 1
7.8 m² -
Nbre de pièce(s)
14
Equipement de base
-
Accès handicapés
NonCuisine
OuiType de cuisine
équipéeAscenseur
NonDouble vitrage
OuiChauffage
Mazout (chauf. centr.)
Équipements techniques
-
Châssis
Pvc
Bâtiment
-
Nombre de garage
1 -
Parking intérieur
NonParking extérieur
OuiParking(s) extérieur
1
Divers
-
Cave
OuiGrenier
Oui
Type de matériau & évaluation
-
Type de revêtement de sol
Carrelages
Ext. & Environnement
En chiffres
-
Largeur front de rue
10.45 -
Surface bâtie
75.5 m² -
Largeur de façade
10 -
Profondeur terrain
14 -
Nbre de terrasse(s)
1 -
Surface brute
236.86 m²
Equipement extérieur
-
Piscine
Non
Spécificités terrain
-
Type d'environnement
Campagne -
Exposition de la façade avant
Nord-ouest
Raccordements
-
égouts
Ouiélectricité
OuiTélévision par cable
Oui
À proximité
-
Magasins
OuiEcoles
OuiTransports en commun
OuiTransports en commun
200Autoroute
OuiAutoroute
3400
Admin & Financier
Charges & Rendement
-
Sous régime TVA
Non
Energie
-
Label PEB
D -
PEB E-SPEC (kwh/m²/an)
269 -
Emission CO2
67 -
E total
58531 -
PEB code unique
20220216007181
Cadastre
-
Revenu cad. indexé
597 €
Domaine juridique
-
Servitude
Non
Certificats / Attestations
-
Capacité de la citerne à mazout
2300 -
Certificat d'électricité
Oui, non conforme